$7,000,000
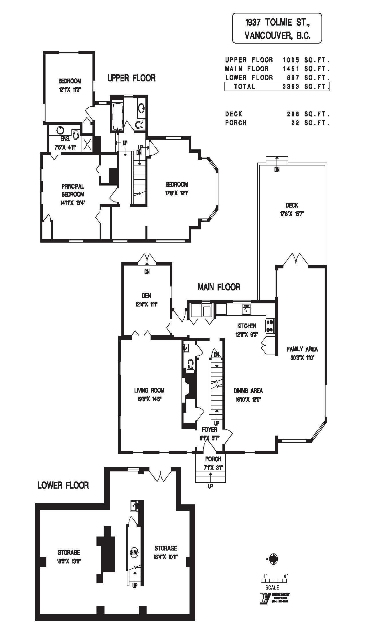
1937 Tolmie Street
More information
Features & amenities
- Shopping Nearby
- Garden
- Balcony
Additional details
- MLS® # R3040986
- Type Residential
- Subtype Single Family Residence
Listing is presented by
Tom Gradecak
WESTSIDE Tom Gradecak Realty